![]()
科技與藝術相遇,成就不一樣的人生

物件基本資訊
開發商
諾博開發Noble Development PLC
交通位置
312 Phahonyothin Rd, Samsen Nai, Phaya Thai, Krung Thep Maha Nakhon 10400泰國
土地面積
3-0-23萊
項目類型
2棟 高層住宅
X棟:39層 | 533個單位
Y棟:7層 | 78個單位
業權
永久業權住宅
交屋標準
精美裝修,附家具套餐
戶型規劃
一房一廳一廁(小):26.40-27.30 平方米
一房一廳一廁(大):34.78-35.16 平方米
兩房一廳一廁:41.86-44.89 平方米
停車位
286個停車位 (約 46%)
公共設施
X棟
地面:大堂/郵箱室
2M樓:圖書館
23樓:天際休息室
39樓:360度空中游泳池
39M樓:360度空中健身房
頂樓:大堂/派遞寄存室/郵箱/洗衣房
Y棟
地面:大堂/智能自動停車場/郵箱室/洗衣房
頂樓:頂樓花園
保安系統
●門卡進出管理
●24小時保安和監控
管理費
75 泰銖 / 平方米 / 月 (需預先繳付6個月費用)
維修基金
450 泰銖 / 平方米
項目價格
單價 每平方米7.81萬泰銖起
總價 186萬泰銖起
付款標準
定金:100000泰銖
下定後14天內:支付樓價之 30%(扣除定金)
及簽署合約
下定後 60天內:支付樓價之70%
在這裡,阿里心臟地帶,充滿時尚氣息的文化魅力街區,您可以釋放自己的創意精神,在您周圍尋找新的靈感,表達您的真實風格。


公共設施
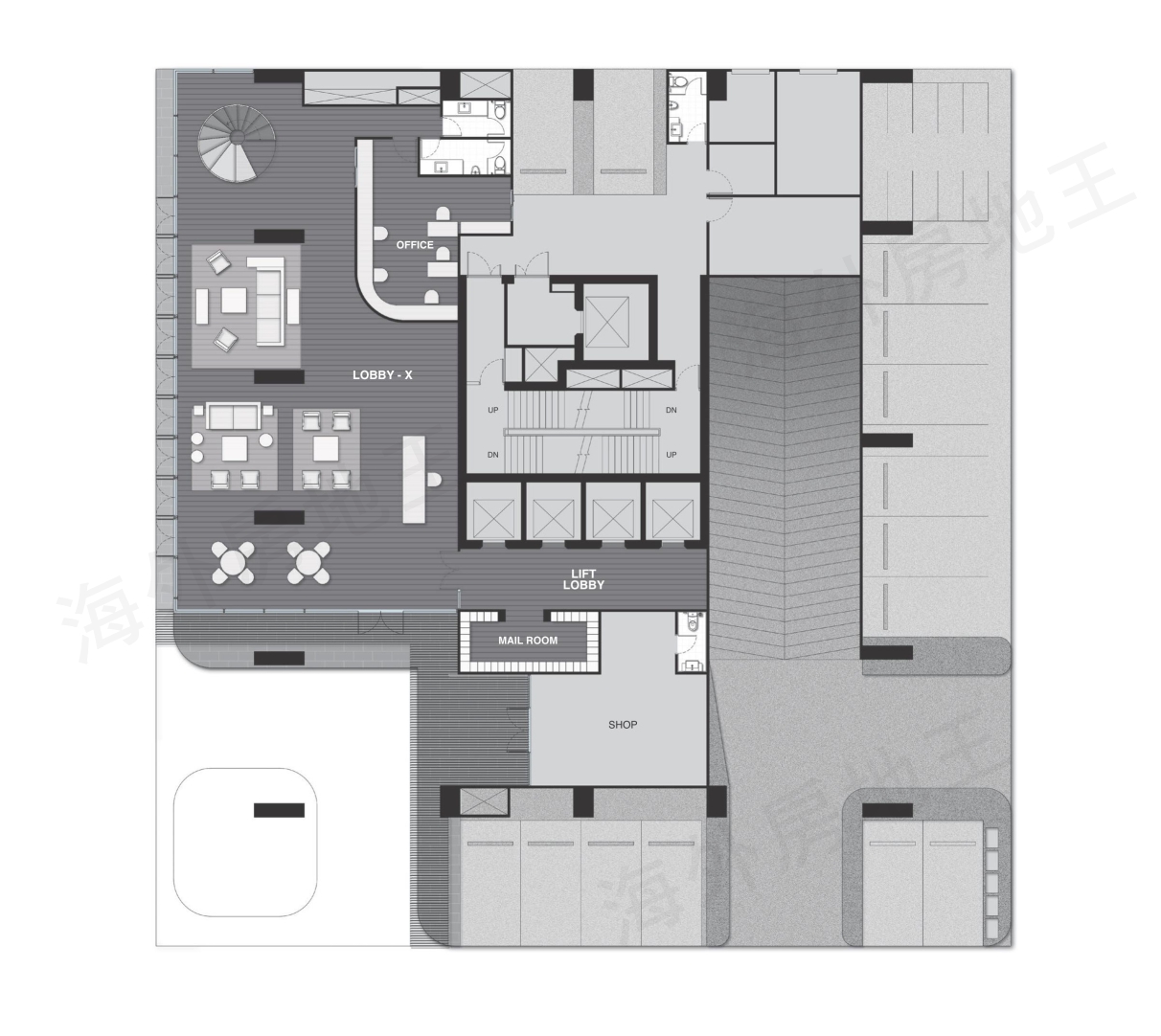
樓層平面圖
平面圖
樣品屋

有興趣了解嗎?
與我們聯絡,了解更多物件相關的問題
本網站建案資訊開放委託刊登,我們將盡力查證相關資訊,但無法擔保皆正確無誤,所有資訊皆以銷售現場之宣傳品為準。














