![]()
生在蓬澎富貴家 人人買得起的富人區


1.區域內”地板價”+超高租賃回報
「區域內”地板價”+超高租賃回報」
出租有保障- 保守估計回報即高出期望
素坤逸蓬澎區目前租金狀態解析
舉例一房:30平方米*租金700銖/平方米/月=21,000泰銖/月
年租金回報高達6% (每年按11個月租金計算)
短租的話租金回報將更加可觀。
2.蓬澎EM享頂級生活圈
●交通網絡全品類覆蓋盡享四通八達BTS/MRT/機場快線/水路交通船/高速公路
●直徑2公里10家頂級商圈環伺你夢寐以求的生活
●頂級商圈內的公園綠地”奢侈”健康生活
●美食林立探索美食必將成為生活在這裡獨有的樂趣
●多所國際學校環繞,不同系統可自由選擇
3.泰國30年老牌開發商實力打造
●東星房產-擁有30年曆史的泰國老牌開發商實力打造
●全面智慧生活配套與現代科技完美融合完整引入項目
4.”泰”式靈感設計+超人性化低密設計
●汲取了傳統泰國建築的設計的精髓泰式條紋、色彩+ 現代設計元素和設施
●15大公共設施全面滿足“快樂”生活所需
5.智慧家居,現代生活盡掌握
●智能家居-遠端控制開關門鎖/空調/窗簾/電視/燈等
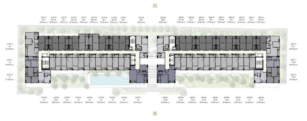
物件基本資訊
面積
2-2-02 Rai
類型
8層2棟住宅公寓
單位數量
323戶(35㎡:186戶;1房:137戶)
停車位
170個(53%)
公共費用
50泰銖/㎡
維修基金
500泰銖/㎡
設計團隊
TANDEM ARCHITECTS (2001)
PIA INTERIOR
PANORAMA
LOKOH+
公共設施
雙大堂休息區|智能蜂巢送BOX241豪車充電椿
自動停車場!自助洗車維護系統!自動
鹽水系統泳池!按摩池!露天溫泉池
24小時共用辦公區 & 電子圖書館
健身房|私教練習室
蒸汽房|綠植花園
如何購買
1.定金: 10萬泰銖/間
2.首付:總價的30%(下定起7日內支付)
3.尾款70%:下定起30日內支付
價格
只要387萬泰銖起
🔥市中心每平方米單價僅114,000泰銖起
🎁送家具送冷氣!
🏠30-68㎡ 1房/2房,超低總價搶佔市中心稀少資源!
🧧超高租金回報率!
🎁免一年物業費免契稅免維修基金!
8層樓防震抗震沒問題!

公共設施
總體規劃
樣品屋
單位規劃
有興趣了解嗎?
與我們聯絡,了解更多物件相關的問題
本網站建案資訊開放委託刊登,我們將盡力查證相關資訊,但無法擔保皆正確無誤,所有資訊皆以銷售現場之宣傳品為準。


















